55 Depot Place, Farmington, CT 06085
Land
Built in ——
1.18acre lot
—— car garage
$——/sqft
Listed 13 days ago
Property Description
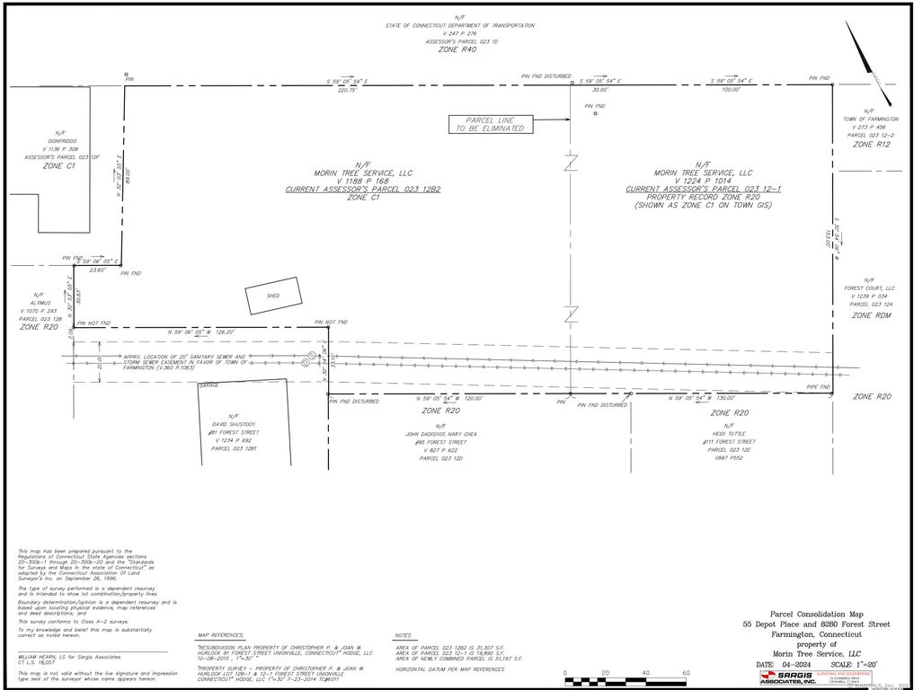
Endless possibilities await at 55 Depot Place in Farmington, which is being sold together with 8280 Forest Street as indicated in the merging lot survey by SARGIS ASSOCIATES. Combined, these parcels offer approximately 1.18 acres of prime industrial land - 0.73 acres at 55 Depot and 0.45 acres at 8280 Forest. The property features paved road frontage with public water and sewer access at the street, making it an exceptional foundation for your vision. Currently approved plans allow for a 6,000 sq ft industrial structure along with on-site storage of materials, with additional development potential available for buyers seeking to expand further. Whether your plans include a modern warehouse, professional facility, or new business headquarters, this site is ready to accommodate. Perfectly positioned just minutes from major highways, it combines convenience, visibility, and flexibility - an excellent opportunity for long-term growth and investment.
- Listing Status:
- Active
- Date Added:
- September 24, 2025 at 07:43PM
- Listing Office:
- KW Legacy Partners : (860) 313-0700
- Listing Agent:
- Matt Miale : (860) 539-2255
- MLS ID:
- 24128529

- Road/Access: Paved Road
- County: Hartford
- Zoning: C12671090
- Utilities: None/Unknown
- Water: Public Water In Street
- Sewer: Public Sewer In Street
This listing courtesy of Matt Miale, KW Legacy Partners
Monthly Payment
- Principal & Interest $
- Property Taxes $
- Home Insurance $
- VA Funding Fee $
Location
Schools Nearby
Union School
173 School St, Unionville, CT, 06085
Grades KG-4
0.63 miles away
Irving A. Robbins Middle School
20 Wolf Pit Rd, Farmington, CT, 06032
Grades 7-8
4.77 miles away
Farmington High School
10 Montieth Dr, Farmington, CT, 06032
Grades 9-12
0.75 miles away